
Nob Avenue Del Mar Residence
Del Mar, California
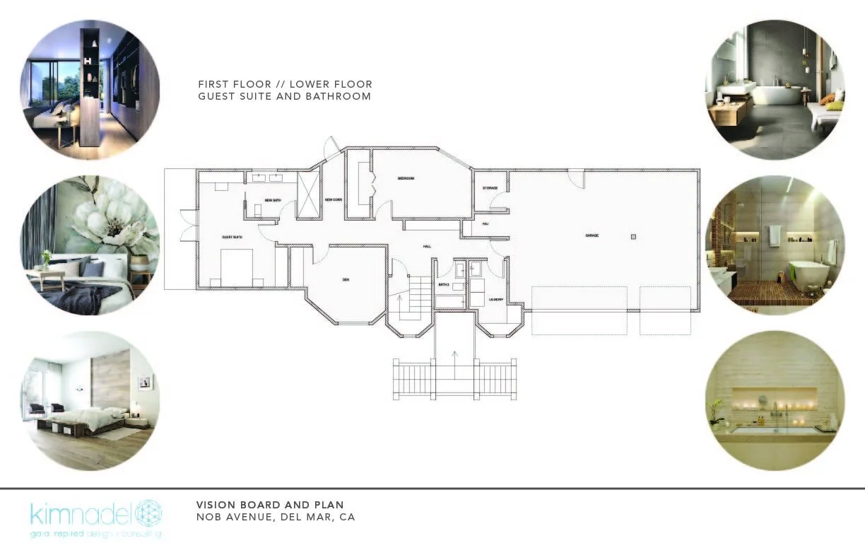
Extensive Renovation Feasibility Study for an oceanview 2 level beach home built in the 70’s in Del Mar, California. Includes visioning, construction budgeting and scheduling, space planning and drawings, and concept mood boards.